Der er god plads i det 99 kvm store klassiske sommerhus, heraf 14 kvm integreret overdækket areal. Er indrettet med entre, køkken, bad og fire værelser med op til otte sovepladser.
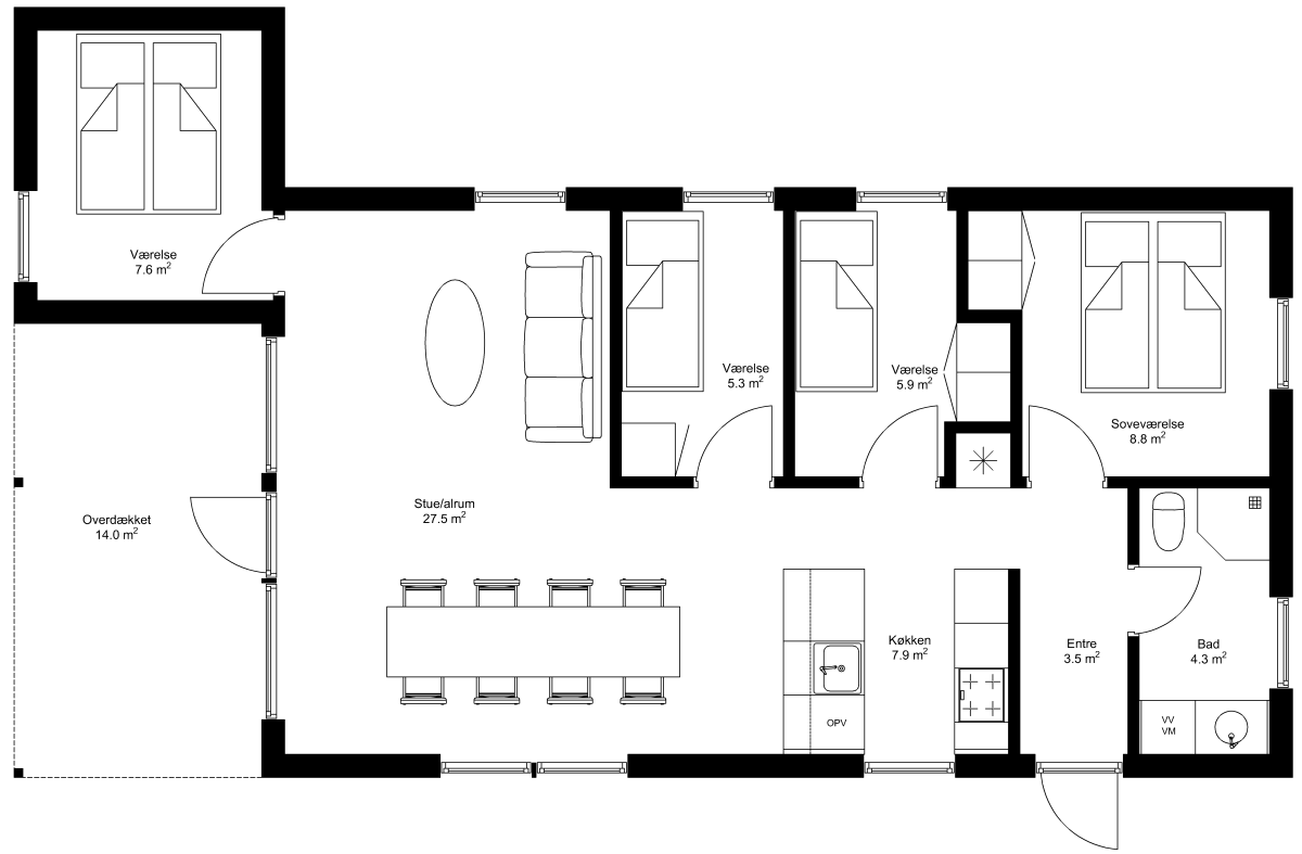
Indgang i facade

Indretning
I badeværelse er der plads til vandvarmer og vaskemaskine.
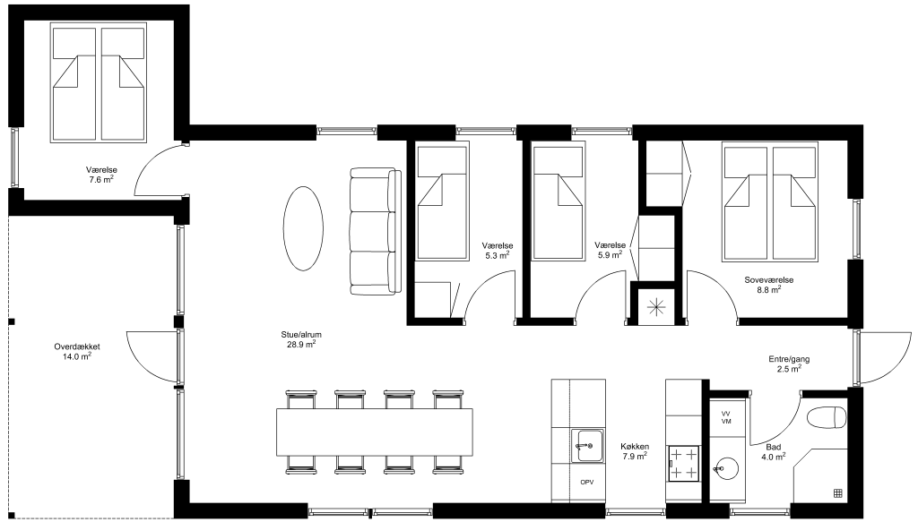
| Bredde (total) | 8,55 m |
| Længde (total) | 14,20 m |
| Bredde overdækket | 5,04 m |
| Længde overdækket | 2,75 m |
Indgang i gavl

Indretning
I badeværelse er der plads til vandvarmer og vaskemaskine.
| Bredde (total) | 8,55 m |
| Længde (total) | 14,20 m |
| Bredde overdækket | 5,04 m |
| Længde overdækket | 2,75 m |
Råhus / skalhus
Materialer til udvendig lukket hus.
Selvbyg
- Tegninger til byggeansøgning
- Træskelet og spær
- Yderbeklædning
- Vinduer / dør
- Betontagsten
Medbyg 1
Uden indvendige materialer
Start montørhjælp
- Råhus / skalhus
- Start montørhjælp til skeletrammer og spær på dit fundament
- Egen montering af yderligere udvendige materiale
Medbyg 2
Med indvendige materialer
Kun muligt på Sjælland
- Råhus / skalhus
- Udvendigt tømrerarbejde, huset afleveres lukket og færdigt udvendig
- Egen montering af indvendige materialer


